ГОТОВАЯ ! Семейная ипотека!! 6% !! Квартира на 4 этаже. Рядом наличие дeтcкoгo cадикa, cвoe отопление, два сан узла, балкон выходит на противоположные стороны, квартира теплая, летом прохладная, солнце встает и садится с торца дома, есть где поставить автомобиль, вся инфраструктура в шаговой доступности, школа в 330 метрах, газовый котел, свое отопление, фасад дома утеплен. Минимальная цена. Один взрослый собственник. Звоните!
Параметры
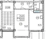
- Количество комнат1
- Площадь кухни10.7
- Тип комнатраздельные
- Ремонтотсутствует
- Мебельотсутствует
- Количество санузлов:1
- Тип домамонолит
- Этажность4
- Наличие парковкиохраняемая парковка
- Общая площадь35.5
- Площадь комнат15
- Этаж4
- Окнапластиковые стеклопакеты
- Мебель на кухненет
- Тип санузласовмещенный
- Год постройки2025
- Состояние подъездановое
- Жилая площадь16.3
- Свободная планировкада
- Вид из оконво двор
- Входная дверьжелезная
- Статусникто не прописан
- Естьбойлер
- Перекрытияж/б
- Лифтнет
Техника
- музыкальный центр
- холодильник
- посудомоечная машина
- Телефон
- DVD
- СВЧ-печь
- стиральная машина
- Интернет
- караоке
- кондиционер
- Телевизор
- Плита
Дополнительная информация
- черный ход
- спутниковое ТВ
- охрана
- сквер
- фитнес-клуб
- аптека
- подвесной потолок
- домофон
- сигнализация
- парковая зона
- круглосуточный магазин
- разноуровневое освещение
- консьерж
- видеонаблюдение
- детская площадка
- торговый центр








